Via Firenze n° 170
Fiano Romano (RM)
00065
Italia
Copyright © 2023 Ingenio Design Srls
Via Firenze 170 - 00065 Fiano Romano (RM)
C.F. / P.IVA 17035501000
Iscritta al Registro delle Imprese di ROMA N.REA RM-1691403

iNgenio Design offre servizi di Progettazione e Cosulenza su Impianti Fotovoltaici con potenza <20 kWh
Il servizio di Progettazione Impianti prevede:
Istruzione Domanda Connessione Enel impianto
Ottenimento Autorizzazioni Comunali per la realizzazione dell'impianto
Progettazione Impianto FV
Progettazione Elettrica dell'impianto
Direzione Lavori al vostro fianco
Scelta dei componenti e guida sugli acquisti materiali (moduli, inverter e componentistica sia elettrica che di carpenteria)
Disbrigo Pratiche Scambio Sul Posto GSE:
Nell’ottica di fornire un servizio al cliente completo e continuativo per tutta la vita produttiva dell’impianto fotovoltaico, Rewatt all’interno del suo staff forma e mantiene in costante aggiornamento personale tecnico dedicato alla gestione delle pratiche burocratiche inerenti la realizzazione e conduzione di un impianto solare fotovoltaico.
Si progettano impianti per istallazioni su:
Solaio Piano
Tetti a Falda
Tettoie / Coperture in legno, alluminio e ferro zincato
Di seguito le differenti tipologie di impianti:



Progettazione e simulazione impianto fotovoltaico.

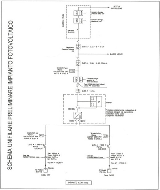
Redazione Schema Unifilare Impianto e gestione pratica di allaccio Impianto.

Progettiamo, realizziamo e gestiamo Impianti FV On-Grid Residenziali
con potenza massima 20kW

Progettiamo, realizziamo e gestiamo Impianti FV con Accumulo.

Working in progress
Realizzazione struttura fuori terra e posa in opera di 28 pannelli da 420 W monocristallini, per due impianti residenziali.
Cantiere Fiano Romano (RM) Gennaio 2024
Via Firenze n° 170
Fiano Romano (RM)
00065
Italia
Copyright © 2023 Ingenio Design Srls
Via Firenze 170 - 00065 Fiano Romano (RM)
C.F. / P.IVA 17035501000
Iscritta al Registro delle Imprese di ROMA N.REA RM-1691403